Archive for julio, 2014

31/07/2014

Procesión de bajar a la Virgen desde su Ermita

Por María Romero

Si no lo ves en tu móvil, CLIC AQUÍ

31/07/2014

Miles de botellas y envases de plástico, reciclados para decorar un pueblo en fiestas.

Si Logrosán es la capital comarcal del reciclaje -ahí está Villuerclaje como prueba-, lo que estos días se hace en sus calles es un verdadero homenaje a la reutilización de los materiales de desecho, al reciclaje.

El pase de diapositivas requiere JavaScript.

 

30/07/2014

Remodelación del Equipo de Fútbol de Logrosán.

Se llamará Asociación Deportiva Logrosán y esta es su nueva Junta Directiva:

Presidente: Miguel Ramos Vicente,

Vicepresidente: Cesar Martín Calero.

Tesorero: Agustín Jiménez Jiménez.

Vocales: Ildefonso Gil Rojas, Juan Pablo López Pizarro, Vicente Casero Fernández, Miguel Perdigón Ruiz- Delgado, Javier Casero Arroyo y Angel Alberca Fernández.

Secretario General: Francisco Abril Hidalgo.

 

 

28/07/2014

«Quiero que la gente sepa cómo son las cosas». Juan Carlos Hernádez hace un amplio repaso a lo más controvertido de la actualidad logrosana.

LAD RADIO (logo)El portavoz municipal socialista lanza duras críticas a algunos aspectos de la política  llevada por la alcaldesa popular, Isabel Villa.

En una conversación de audio con María Romero -que reproducimos en su totalidad-, achaca el aluvión de proyectos y noticias que están publicitando desde la administración regional y local a una estrategia del partido que supone el pistoletazo de salida para las próximas elecciones autonómicas y municipales.

juan carlos papeles«El nuevo Centro de Salud de Logrosán podría estar construido desde hace, por lo menos cuatro años, si por parte de la alcaldía no se hubiera priorizado la puesta en valor de la Mina Costanaza»

«…Me gustaría expresar mi solidaridad personal y la de mi grupo con los vecinos afectados por las obras del centro de formación del SEXPE por el trato prepotente que han recibido por parte del ayuntamiento…»

«…No me parece que sea el momento oportuno para gastar 7500 euros en premios para un concurso de escultura…»  «…El gobierno local se ha gastado 900 euros en ayudas sociales y ahora se va a gastar 7500 en unos premios; creo que no hay comparación…»

Estas y otras acusaciones, estos y otros temas repasados desde la oposición política en un audio exclusivo de RADIO LOGROSÁN AL DÍA.

Ir a descargar

28/07/2014

SUCESOS: Una logrosana sufre un accidente de coche por evitar el atropello de unas ovejas.

El suceso ha ocurrido esta mañana cuando el vehículo conducido por M.C. que viajaba sola,  se salió de la vía  en una peligrosa curva entre Logrosán y Zorita al intentar esquivar unas ovejas que se encontraban sueltas en la calzada.

El vehículo ha sufrido importantes daño, pero la joven conductora de entre 25 y 30 años de edad, que fue trasladada a Cáceres, se halla fuera de peligro.

 

28/07/2014

Programa de fiesta de Cañamero

CLIC PARA AMPLIAR

CLIC PARA AMPLIAR

28/07/2014

El ayuntamiento quiere que la estación se convierta en el segundo foco de interés turístico.

La Alcaldesa de Logrosán, la Directora General de Patrimonio del gobierno extremeño, y Juan José Ramos, presentaron ayer el macroproyecto como mucho más que un centro de formación y unas viviendas sociales.

Tras el complejo de «Minas de Logrosán», que no ha dejado de recibir vistas desde su apertura, este nuevo proyecto pretende que el visitante prolongue su estancia en Logrosán con nuevos espacios que despierten el interés del turista de interior.

Isabel Villa anunció que, además de todo lo refrente a la la cultura, a la formación para discapacitados, y a las viviendas sociales, también tiene entre sus proyectos una mirada hacia nuestro sector agrícola, con formación y asesoramiento para agricultores logrosanos y orientaciones necesarias para el cultivo de nuevos productos en la zona como el pistacho o la cereza temparana, de gran demanda en los mercados.

El pase de diapositivas requiere JavaScript.

27/07/2014

Ya se conocen los detalles del macroproyecto de la Estación de Logrosán

Un acto público y multitudinario celebrado esta tarde en las propias instalaciones ferroviarias, ha servido para la presentación por Isabel Villa del ambicioso y atrevido proyecto que va a transformar la abandonada estación logrosana, en un lugar nuevo y con grandes pretensiones.

Según el proyecto presentado hoy,  la transformación consistiría en:

MUELLE DE CARGA Y ALMACÉN

El anteproyecto para este edificio , tendría una doble finalidad : Museo de las Obras Arquitectónicas más significativas de la línea del Ferrocarril  “Talavera de la Reina-Villanueva de la Serena” y Centro Especial de Empleo.

Un centro especial de empleo (CEE) es un centro de trabajo en el que el 70% de los trabajadores  tengan una discapacidad superior al 33%.

El objetivo principal de estos centros es la integración laboral y social. Por un lado se realizaría la musealización del Edificio que a la vez serviría como centro de trabajo y para ello el Ayuntamiento de Logrosán ha organizado  un curso de formación en el  cual se impartirán diferentes módulos: Normas de Convivencia, Autoempleo, Primeros Auxilios, Riesgos Laborales, Gestión de Residuos y Manualidades (Maquetas, Pintura y Adornos Florales). Con la intención de que al menos 10 de estos alumnos que superen satisfactoriamente la formación puedan incorporarse a este centro de trabajo.

La actividad como centro de trabajo para conseguir su sostenibilidad económica estará encaminada en la realización de las replicas de las obras arquitectónicas anteriormente citadas para su exposición en el museo y  distintas replicas a diferentes tamaños para posible venta a turistas, vecinos y otras entidades.

Además al estar próxima la puesta en marcha del Punto Limpio en el municipio, el Centro Especial de Empleo sería también el Responsable de su  atención y entrega a gestores autorizados de los residuos depositados por los distintos vecinos de la localidad en el mismo. 

INSTALACIONES EXTERIORES ESTACIÓN DEL FERROCARRIL DE LOGROSÁN.

El anteproyecto previsto es realizar un Museo del Ferrocarril al aire libre.

Se rehabilitarán los distintos edificios para conservar el máximo posible del encanto de la Antigua Estación de Tren, incluso volveremos a contar con un tramo de vía con sus correspondientes traviesas y raíles, además de  una locomotora y sus vagones, lo que se complementará con las obras de artes que se vayan premiando en el Concurso de Esculturas a nivel nacional.

 EMBARCADERO PARA MERCANCÍAS O GANADO

 El Anteproyecto previsto es la creación de un ANFITEATRO al que se añadirán gradas y camerinos con aseos, siendo la parte más baja el escenario.

Con ello el Ayuntamiento quiere dotar a Logrosán con un espacio más para la cultura.

 VIVIENDAS DE LOS FERROVIARIOS

PLANO VIVIENDAS  -PROYECTO ESTACIÓN

clic para ampliar

 El Ayuntamiento de Logrosán presenta un anteproyecto para la creación del primer Parque Público de Viviendas en Alquiler de propiedad municipal. El mismo será sometido a aprobación en el Pleno de la Corporación a lo largo del mes de septiembre.

        Se trata de un ambicioso proyecto de carácter social, en el cual las viviendas (85 m2 aprox) situadas en la Estación de Ferrocarril se rehabilitarán y dotarán de los servicios necesarios; constarán de tres dormitorios, baño, sala de estar, cocina y patio de alrededor de 50 m2. Las mismas son de propiedad municipal y será el propio Ayuntamiento quien las alquile a familias que carezcan de vivienda en propiedad y no superen el limite de ingresos establecidos en las bases. Los alquileres tendrán un bajo coste (60 euros mensuales), y anualmente serán revisados los datos económicos, sociales de los arrendatarios..

        El Ayuntamiento de Logrosán solicitará las ayudas correspondientes tanto al Gobierno de España como al Gobierno de Extremadura para conseguir la máxima financiación para llevar a cabo el proyecto.

VIVIENDAS DE LOS FERROVIARIOS

FACHADA VIVIENDAS -PROYECTO ESTACIÓN

clic para ampliar

 

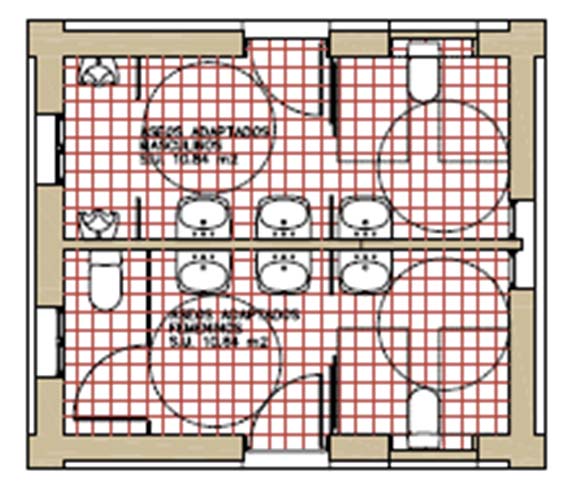
SERVICIOS PARA VISITANTES

 

ASEOS PÚBLICOS -PROYECTO ESTACIÓN

clic para ampliar

ASEOS PÚBLICOS FACHADA -PROYECTO ESTACIÓN

clic para ampliar

EDIFICIO PRINCIPAL ESTACIÓN DE LOGROSÁN

Éste edificio denominado Estación de Logrosán se construyó con una tipología distinta al resto de estaciones de la Línea Férrea de Talavera de la Reina a Villanueva de la Serena. Debido a la importancia de Logrosán del momento por las Minas de Fosfato y Estaño se edificó en lugares distintos este Edificio Estación y el embarcadero de ganados.

Construida en ladrillo visto macizo, la cubierta se sustituyó por una terraza y cuenta con un cuerpo saliente en la planta baja para el despacho del Jefe de Estación.

Se pretende la puesta en marcha de un Centro de Formación con el objetivo fundamental de obtener los niveles adecuados de cualificación profesional de los agentes económicos del mundo agrario de la Comarca Villuercas Ibores Jara.

De éste modo, agricultores, ganaderos, asociaciones de empresarios agrarios, cooperativas y personas interesadas en iniciarse en la agricultura podrán formarse para dotar de dimensión empresarial a nuestras explotaciones y garantizar una producción agroalimentaria sostenible, segura, de calidad y rentable.

Las actividades formativas se agruparán en dos Programas Formativos:

  1. Formación Reglada: Ciclo Formativo de Grado Superior, Ciclo Formativo de Grado Medio, Programa de Cualificación Profesional y Módulos Profesionales.
  2. Formación Continua y Ocupacional: Incorporación a la Empresa Agraria, Plaguicidas de Uso Agrícola, Plaguicidas de Uso Ganadero, Bienestar Animal, Plan de Formación para la Mujer en el Medio Rural.

Del mismo modo, se pretende que éste Centro de Formación sea referente en la Familia Profesional de Informática y Comunicaciones con la impartición de cursos encaminados a la obtención de Certificados de Profesionalidad.

Podrán ser beneficiarios alumnos de los municipios integrantes de la Comarca Villuercas Ibores Jara y una vez obtenido su correspondiente certificado de profesionalidad podrán incorporarse al mercado laboral prestando sus servicios en:

-. Empresas que utilicen sistemas informáticos en su gestión, en cualquier sector productivo.

-. Empresas de asistencia técnica y distribuidoras de servicios informáticos.

-. Distintas Administraciones Públicas como parte del soporte informático de la organización.

26/07/2014

La señora Villa explica este domingo su ambicioso proyecto de recuperación para la estación ferroviaria logrosana.

Será en un acto público al que están invitados todo Logrosán y al que asistirán diversas autoridades y personalidades, unidas en el objetivo de potenciar los edificios y las siete hectáreas de espacios aledaños.

EDIFICIOS ESTACIÓN EN RUINA (12)La alcaldesa, Isabel Villa, explica que con motivo de la propuesta de compra formulada por el ayuntamiento a Adif sobre la estación de ferrocarril, «y al habernos puesto en contacto con Juan José Ramos Vicente, paisano y gran enamorado de los trenes, además de poseer una de las mayores colecciones de fotografías de estaciones, y autor del libro El Ferrocarril de Talavera de la Reina a Villanueva de la Serena. Historia de la Ilusión , desde el ayuntamiento «hemos estimado que ya podemos dar datos más certeros de los usos que están previstos para los edificios y el terrenos», al estar muy avanzado el desbroce, la limpieza y la demolición de algunas partes de las edificaciones que causen peligros.

El proyecto prevé la recuperación de la estación para formación, empleo, atención a la discapacidad, vivienda, cultura, patrimonio, turismo y agricultura. (viene del PERÍODICO EXTREMADURA)

26/07/2014

Las familias logrosanas podrían recibir una prestación económica por hijo de 100 euros anuales.

Sería por hijos de entre 1 y 16 años y será sometida a aprobación en el próximo pleno municipal.

Todo esto, según nota  difundida  por responsables municipales esta mañana (que reproducimos literal) en la que además se incluirá una reducción del 60% en la cuota de la guardería infantil municipal, si hubiera niños en la edad.

read more »

26/07/2014

«Es más fácil que una burra aprenda a hilar, a que sea Villa Logrosán»

Las leyendas e historias contadas de abuelos a nietos durante generaciones, nos traen hoy la que nos narra cómo la aldea de Logrosán dejó de serlo y de pertenecer a Trujillo para convertirse en Villa con independencia plena.

por Carmen Bernardo Ruiz

read more »

26/07/2014

La casa de la Cultura de Logrosán renovará la carpintería exterior para mejorar el aislamiento térmico.

Sin ningún gasto por parte del ayuntamiento gracias al Plan de Subvenciones a Entidades Locales de Eficiencia Energética 2014 de la Diputación cacereña.

Casa de la cultura, donde se ubicará el SEXPE

Casa de la cultura, donde se ubicará el SEXPE

La Casa de Cultura sufre mucha pérdida de energía a causa de  una obsoleta carpintería de hierro de más de 30 años, por lo que se instalará nueva carpintería de aluminio con rotura térmica y doble acristalamiento, al igual que se ha hecho con fondos propios en la futura oficina del Sexpe-Sepe.

 

26/07/2014

EMPLEO: El ayuntamiento contratará 3 peones jardineros por 6 meses.

Se han propuesto las siguientes contrataciones:  JORGE CARLOS SANROMÁN DELGADO, DANIEL PERDIGÓN GIL y NURIA MARTÍN SERRANO  y como suplentes por este orden a ANA JOSEFA CANO ROJAS, GEMMA LÓPEZ MARTÍNEZ, JOSÉ CORTIJO MARTÍNEZ, SUSANA REBOLLO SANROMÁN y REMEDIOS PEDRERO TORREJÓN.

read more »

25/07/2014

7500 euros en premios destinará el ayuntamiento a un concurso de escultura.

Se trata del I Concurso Nacional de escultura «Estación del ferrocarril de Logrosán» que tiene un primer premio de 5000 euros y un segundo de 2500.

concurso escultura

clic para acceder a las bases

El ayuntamiento pretende crear un área de exposición de obras premiadas al aire libre, en los espacios recuperados a la estación según el proyecto de la alcaldesa que será presentado este domingo a las 8 de la tarde en los edificios de la vieja estación.

23/07/2014

Formación para discapacitados con posibilidades de futuro contrato laboral.

La actividad formativa contará de diferentes módulos:   educación vial, Conocimiento de la Comarca, Vía Verde y Mina de Logrosán, Nuevas Tecnologías, Normas de Convivencia, Autoempleo, Primeros Auxilios, Riesgos Laborales y formación teórico práctica sobre Manualidades : maquetas, pintura y adornos florales y Gestión de Residuos.

Desde el 18 de Agosto al 20 de Noviembre.
Los interesados deberán constatar una discapacidad superior al 33%, los participantes recibirán una beca de 600  financiada por el Ayuntamiento de Logrosán si superan los módulos satisfactoriamente.

El objetivo del curso se debe a la intención  del este Ayuntamiento de crear un Centro Especial de Empleo en el edificio del muelle  (una vez rehabilitado) de la estación del ferrocarril abandonada, que a la vez que sirva de Museo o sala de exposición de todo lo referido a la Línea de Ferrocarril » Talavera de la Reina-Villanueva de la Serena».

 Además, ante la próxima puesta en marcha del Punto Limpio, el Centro de Empleo también se encargará de su atención gestión.

El ayuntamiento logrosano en nota emitida al respecto afirma que, al menos 10 de los participantes  que superen el curso satisfactoriamente se incorporen al mundo laboral.

Hasta la fecha se han inscrito 20 alumnos, si todavía no te has inscrito puedes hacerlo en el Edificio del Hogar del Pensionista, 1ª Planta, 927 15 80 64 y hablar con Geli o María.

23/07/2014

Logrosán solicita un «proyecto de utilidad social» para desempleados.

El Ayuntamiento de Logrosán ( Cáceres) , ha solicitado al SEXPE, un proyecto de utilidad social. Se trata de una vía para que el desempleado mantenga su contacto con el mercado laboral ya que, si bien los trabajos de colaboración social no constituyen relación laboral con el Ayuntamiento de Logrosán donde se prestan los servicios, si contribuyen a la adquisición de experiencia laboral y en definitiva, a mejorar las posibilidades de acceso al mercado de trabajo.

Además el Ayuntamiento va a poner en marcha otro proyecto denominado ¿Y…Si tú fueras Alcalde?: Proyecto para la implicación de los vecinos de Logrosán en el desarrollo del municipio haciendo propuestas de mejora sobre empleo, empresas, formación, cultura, obras públicas, etc. Los vecinos podrán participar de forma anónima o bien participando en los distintos foros ciudadanos creados por la persona encargada del proyecto que trabajará en régimen de colaboración social.

read more »

23/07/2014

Logrosán tendrá un parque público de viviendas para alquiler.

El Ayuntamiento de Logrosán, solicitará -dentro del PLAN ESPECIAL DE VIVIENDA aprobado en el ultimo Consejo de Gobierno de Extremadura– las ayudas para la creación de un parque público de viviendas en alquiler sobre suelos e edificios de titularidad pública, con las siguientes características:

AYUNTAMIENTO_001– La superficie útil no podrá exceder de 90m2.

– Podrán ser procedentes de la rehabilitación de edificios públicos (en este caso se utilizarán las viviendas de los ferroviarios que se encuentra en la actual Estación de Ferrocarril abandonada).

– El Ayuntamiento deberá mantener el régimen de alquiler por un plazo mínimo de 50 años.

– Las viviendas una vez rehabilitadas se destinarán a alquiler en rotación, para ser alquiladas a unidades de convivencia con ingresos totales de hasta 1,2 veces el  IPREM, sumando los de todos los que vayan a residir habitual y permanentemente en la vivienda.

– El alquiler debe ser en rotación y con una renta máxima de 4,7 euros mensuales y 6 euros metro cuadrado si fuera alquiler protegido, y no superar los ingresos entre 1,2 y 3 veces el IPREM sumando todos los que vayan a residir habitual y permanentemente en la vivienda.

El límite de la subvención que recibirá el Ayuntamiento será de 22.500 euros por vivienda,  compatible con otras ayudas públicas. En el caso de no conseguir más ayudas el Ayuntamiento  realizará las aportaciones necesarias.

En el próximo pleno se someterá a su aprobación las normas específicas que regularán la adjudicación de viviendas en alquiler, ya que, nuestra intención es que el precio mensual sea de 60 euros mensuales, y contratos de un año, prorrogables hasta cinco, siempre y cuando los adjudicatarios sigan cumpliendo los requisitos establecidos en las convocatorias.

A partir de Septiembre comenzarán las obras de rehabilitación y los interesados podrán solicitar y presentar la documentación necesaria para participar en el proceso de selección.

22/07/2014

Una logrosana participa en un experimento de la NASA en Cabo Cañaveral

Rocío Jado Puente, estudiante de bachillerato, ha participado en un proyecto consistente en medir la producción de energía en células solares a 30km de altura, donde las condiciones son parecidas al planeta Marte.

Además, añadiendo una serie de filtro, el proyecto también contempla la creación de un espectrógrafo low cost.

El proyecto fue seleccionado para su realización en las instalaciones de la NASA y sus autores han viajado hasta  Cabo Cañaveral, Florida para llevarlo a cabo.

El pase de diapositivas requiere JavaScript.

Hace unos meses Rocío presentó un ensayo de 400 palabras sobre el tema “El espacio y yo”. Era el requisito que pedían para poder ser seleccionada dentro del Proyecto SATLAB (Satellite-Laboratory), una iniciativa impulsada por Talemtum Schools (Telefónica) y NASA Florida Space Grant Consortium para fomentar la curiosidad científica y tecnológica entre estudiantes de España y Florida.

read more »

18/07/2014

El deporte y la actividad física, uno de los platos fuertes para este mes de agosto en Logrosán.

Las actividades deportivas organizadas por la Concejalía de deportes quieren llegar a todos los públicos y edades.

Incluida una marcha nocturna a Guadalupe para mayores de 16 años el 14 de agosto.

Actividades deportivas durante las fiestas patronales:

read more »

18/07/2014

El GOEPARQUE de las Villuercas, una buena opción para estas vacaciones.

El Centro de Recepción de Visitantes de Cañamero ha publicado su nuevo horario de verano y la programación de actividades para hacer en el Parque este verano.

read more »

Etiquetas:
16/07/2014

La organización de ciclistas MTB de Logrosán organiza el «I campus de ciclismo»

I CAMPUS CICLISMO

read more »

14/07/2014

Este 27 de julio se repetirá el «acto de recepción de la Estación» de tren de Logrosán.

Será un acto simbólico 52 años después de que allí se celebrara el acto de entrega definitiva de la estación de ferrocarril que nunca fue.

Aunque la entrega tiene fecha oficial de 1959, el acto oficioso de entrega se hizo en las instalaciones de la estación  exactamente el 27 de julio de 1962.

En esta ocasión el motivo es, según nota municipal, el avanzado estado de las negociaciones con ADIF (actual propietaria de las instalaciones) para su venta al ayuntamiento de Logrosán. Según fuentes oficiales, el actual gobierno municipal ya tiene elaborado un ambiciosos proyecto de recuperación y puesta en valor del emblemático lugar. 

La estación de Logrosán, por su importancia en el momento histórico de su construcción, consta de varios y magníficos edificios que, aunque en estado de ruina, el ayuntamiento intentará recuperar ahora, si se produce la citada transacción.

El ayuntamiento de Logrosán ha hecho extensible la invitación al citado acto a todos los logrosanos y villuerquinos. En él, estará presente el paisano Juan José Ramos Vicente, el mayor investigador y conocedor sobre la el proyecto y la historia de nuestra estación, y será culminado con un «vino español» como agasajo para los presentes. A  las 8 de la tarde, el próximo 27.

El pase de diapositivas requiere JavaScript.

OLYMPUS DIGITAL CAMERANOTA MUNICIPAL (literal):

read more »

13/07/2014

Así se vió la»Super Luna» de ayer sábado.

IMG_8731 (2)

10/07/2014

La nueva agrupación política «Podemos» tendrá presencia en las Villuercas.

Para ello se celebró ayer tarde una reunión en Cañamero a la que asistieron representantes de distintas localidades de la comarca. La intención es crear el «Circulo Podemos de las Villuercas«.
20140710-184145-67305735.jpgEn ella se debatió sobre temas sociales, sobre las carencias y problemas de las localidades de la comarca y las posibles soluciones, sobre APRODERVI y el geoparque.
Se acordó celebrar reuniones informativas en todas las localidades para afianzar la presencia de Podemos en la comarca.

20140710-184145-67305948.jpg

 

09/07/2014

CULTURA: III concurso de pintura rápida.

III concurso de pintura copia